г. Сочи, СНТ Оазис, 118, до моря 4823 м
-
Новостройки
По готовностиДополнительно
-
Квартиры
Кол-во комнатПо-статусуДополнительноАренда
-
Дома
По-классуПо типуДополнительноАрендаПо-районамНовостройки
-
Земельные участки
НазначениеДополнительно
-
Коммерция
ГостиницыДополнительно
-
Апартаменты
По-статусу
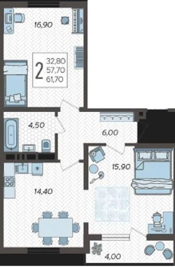
Двухкомнатная квартира S 61.2 м² на 3 эт., р-он Раздольное, Лот № 177257
г. Сочи, Тепличная улица, 108, до моря 4917 м
ЖК «Горный квартал» - мечта о жизни на природе, которая стала реальностью. Жить в курортной столице России — значит наслаждаться красотой моря и гор, мягким климатом и разнообразием интересных локаций круглый год.
На склоне горы в прекрасном районе Сочи расположились шесть домов высотой 10-16 этажей. Квартал гармонично вписался в окружающую среду, занятую лесными массивами, и обладает благоприятной розой ветров и удобными транспортными развязками. Благоустройство территории предусмотрено только на части, где размещены здания, проезды и игровые площадки, тогда как остальная территория останется в первозданном состоянии. Этот жилой комплекс идеально подходит как для летнего отдыха, так и для постоянного проживания семей с детьми. Школы, детские сады, поликлиники и автобусные остановки находятся все в шаговой доступности от комплекса. А на первых этажах зданий будут расположены магазины и уютные кафе для удобства жителей. Наслаждайтесь прекрасным видом на окружающие горы и леса!
На территории комплекса появится все необходимое для комфортной жизни: магазины и кафе, рестораны и салоны красоты, современная школа и детский сад также расположатся рядом - добраться до них можно за несколько минут.
Продуманное благоустройство, ландшафтный дизайн, близость к центру города и морю выводят качество жизни в «Горном квартале» на новый уровень.
- самый минимальный первоначальный взнос в Сочи от 13.5%
- минимальная процентная ставка по ипотеке от 0,1%
По отзывам, данный ЖК - отличный вариант для инвестирования на ранней стадии строительства.
Организация показа объекта недвижимости доступна в двух вариантах:
Лично – когда вы в сопровождении доверенного посещаете этот объект, осматривая его, и на месте задаете все интересующие вопросы.
Онлайн – через видеосвязь. Вместе с вами обойдем все помещения, прилегающую территорию и ответим на все интересующие вопросы.
От застройщика
г. Сочи, СНТ Оазис, 113, до моря 4917 м
г. Сочи, Тепличная улица, 108, до моря 4846 м
г. Сочи, Тепличная улица, 108, до моря 4846 м
г. Сочи, Тепличная улица, 108, до моря 4917 м
г. Сочи, Тепличная улица, 108, до моря 4917 м
г. Сочи, СНТ Оазис, 113, до моря 4917 м
г. Сочи, СНТ Оазис, 118, до моря 4823 м
г. Сочи, Тепличная улица, 108, до моря 4846 м
г. Сочи, Тепличная улица, 108, до моря 4846 м
г. Сочи, Тепличная улица, 108, до моря 4917 м
г. Сочи, Тепличная улица, 108, до моря 4846 м
г. Сочи, Тепличная улица, 108, до моря 4846 м
г. Сочи, Тепличная улица, 108, до моря 4846 м
г. Сочи, Тепличная улица, 108, до моря 4846 м
г. Сочи, Тепличная улица, 108, до моря 4917 м
г. Сочи, Тепличная улица, 108, до моря 4846 м
г. Сочи, Тепличная улица, 108, до моря 4917 м
г. Сочи, Тепличная улица, 108, до моря 4846 м
г. Сочи, СНТ Оазис, 113, до моря 4917 м
г. Сочи, Тепличная улица, 108, до моря 4846 м
г. Сочи, Тепличная улица, 108, до моря 4917 м
г. Сочи, СНТ Оазис, 113, до моря 4917 м
г. Сочи, СНТ Оазис, 113, до моря 4951 м
г. Сочи, СНТ Оазис, 118, до моря 4823 м
г. Сочи, Тепличная улица, 83, до моря 4846 м
г. Сочи, Тепличная улица, 108, до моря 4917 м
г. Сочи, Тепличная улица, 108, до моря 4917 м
г. Сочи, Тепличная улица, 83, до моря 4846 м
г. Сочи, Тепличная улица, 83, до моря 4846 м
г. Сочи, Тепличная улица, 108, до моря 4885 м
г. Сочи, Тепличная улица, 108, до моря 4917 м
г. Сочи, Тепличная улица, 108, до моря 4951 м