ЖК Green Town 2 (Грин Таун 2), Лот № 149054

г. Сочи, Дачная улица, 28/4, до моря 1383 м

Лот149054
Опубликовано:
1842 просмотров
...
От 240 000 руб/м²
От 5 496 000 руб.
Лот №: 149054
Цена от: 5 496 000 руб.
Площадь от: 22.9 м²
Цена за кв/м. от: 184 697 руб.
Этажность: 10
Расстояние до моря: 1 383 м
Район: Адлер
Готовность: Да
Время сдачи: Сдан
Сейчас этот объект смотрят 7 человек

ЖК «Green Town 2» - двухсекционный (2 подъезда) многоквартирный жилой дом  расположен в Адлерском районе п. Орел-Изумруд.

Внешний вид многоквартирного жилого дома решен в выразительных, пластичных формах с устройством активно выступающих балконов, создающих индивидуальную пластику фасада здания. Планировочная организация здания решает две основные задачи: рациональная организация среды для комфортного проживания людей и функциональное и безопасное назначение помещений. Многоквартирный  жилой дом запроектирован с учетом требований доступности зданий и сооружений для маломобильных групп населения.  

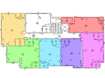
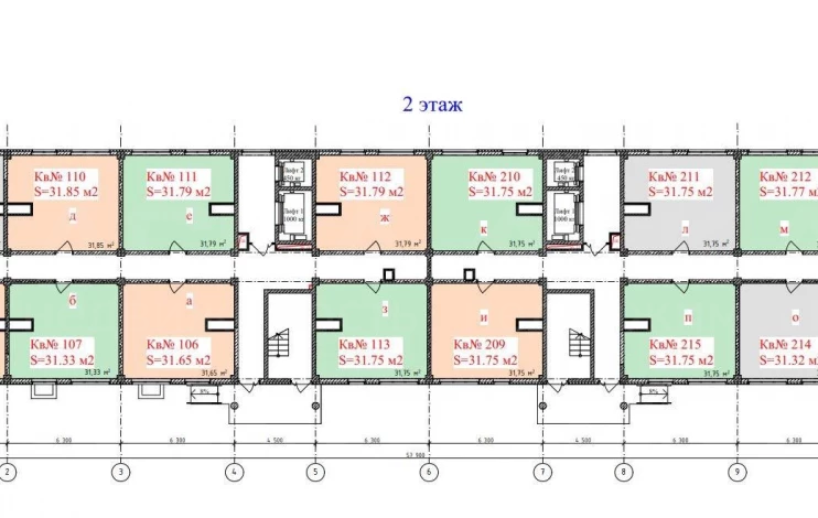
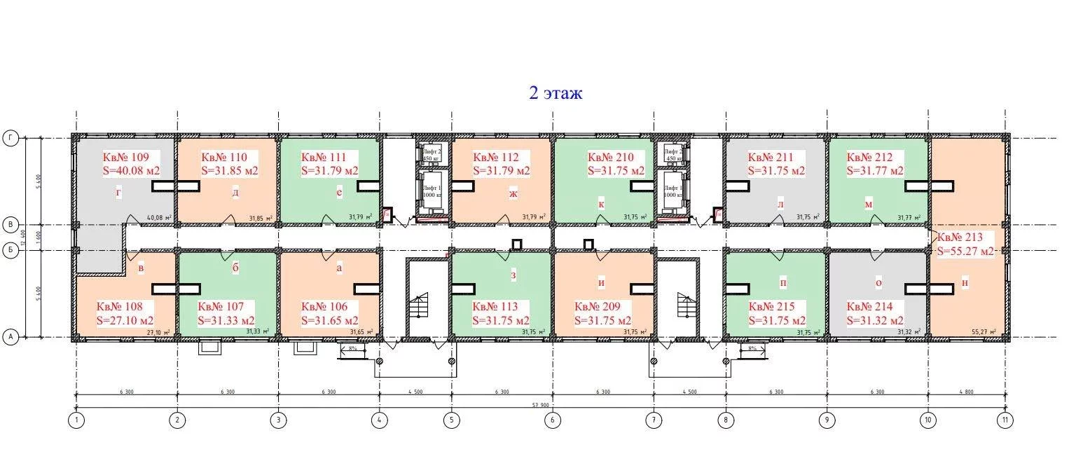
Покупателям предлагаются квартиры на любой вкус. Это как традиционный спектр, от уютных студий площадью 30 кв.м. до просторных 80-метровых квартир свободной планировки, с высотой потолков 2,8 м. В каждой квартире предусмотрен индивидуальный газовый котел. 

В каждой секции предусмотрена установка двух лифтов – грузового и пассажирского, в частности это современные скоростные и бесшумные лифты фирмы OTIS, которые обладают лучшими показателями по таким параметрам, как плавность хода, безопасность, энергосбережение и долговечность. Конечно, важна и эстетическая составляющая: отделка кабин из стали, зеркала и мягкое освещение. 

На прилегающей территории запроектированы стоянки для легковых автомобилей, размещены все необходимые площадки благоустройства для жителей ЖК «Green Town 2»: физкультурная, детская, площадка отдыха взрослых и хозяйственная. Существующая расширяемая площадка для сбора ТБО находится в непосредственной близости от жилого дома. В озеленении территории жилого комплекса использованы деревья и кустарники различной величины, вечнозеленые и  красивоцветущие, обладающие различной формой и окраской крон и листвы, не имеющие ядовитых листьев и плодов и весьма декоративные в любое время года. Растения высаживаются в виде живописных композиций свободной формы на газоне.

Многоквартирный жилой комплекс находится в районе с развитой инфраструктурой. Расстояние до школы и детского сада-700 метров. В шаговой доступности вы найдете различные магазины, салоны красоты, точки общепита, рынки и т.д. Отличная транспортная доступность, остановка общественного транспорта в 200 метрах от дома.  Прогулка длительностью 30 минут приведет вас к морской набережной.

Остались вопросы?
Наши специалисты ответят на все интересующие вопросы о
Расположение объекта на карте
ЖК Green Town 2 (Грин Таун 2)
Получить презентацию
Локация
Расположение
Комплекс расположен в Адлере в непосредственной близости от центра города, всех достопримечательностей и культурно-досуговых заведений.
Центр Сочи
Аэропорт
Красная поляна

Похожие объекты

Остались вопросы?
Наши специалисты ответят на все интересующие вопросы о