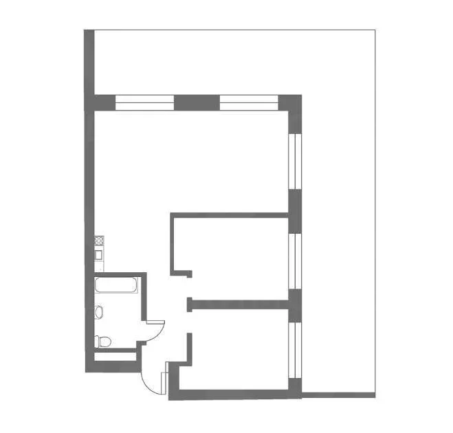
Двухкомнатная квартира S 86.99 м² на 5 эт., р-он Дагомыс, Лот № 187055

г. Сочи, Батумское шоссе, 28Ак1, до моря 1337 м

Лот187055
Опубликовано:
281 просмотров
...
211 289 руб/м²
18 380 000 руб.
Лот №: 187055
Цена: 18 380 000 руб.
Общая площадь: 86.99 м²
Кол-во комнат: 2
Этажность: 20
Этаж: 5
Расстояние до моря: 1 337 м
Ремонт: Евростандарт
Район: Дагомыс
Тип квартиры: Типовая
Ипотека: Рассчитать
Сейчас этот объект смотрят 5 человек

Лучший современный жилой комплекс: построен по ФЗ214, прекрасное расположение корпусов, просторная территория в бассейном, игровыми и спортивными площадками, паркингом, собственным Торгово-развлекательным центром.

Прекрасная транспортная развязка, включая ЖД станцию с электричками до всех пунктов Черноморского побережья и других городов. Вся инфраструктура для жизни и отдыха. Пешая доступность до лучших лазурных пляжей. Прекрасные статусные соседи - знаменитый санаторий Дагомыс и апарт-отель Adajio Le Rond Sochi.

Прекрасная планировка на 2 стороны корпуса с балконом вдоль всей квартиры обеспечит прохладу и незабываемые виды на вечно зеленый город и море. Такие квартиры от застройщика предлагаются по гораздо более высоким ценам. 

Квартира сдавалась без ремонта, покупатели могут сделать его под свой вкус, мы предлагаем специальные условия при заказе дизайн проекта, выполнении ремонтных и отделочных работ.

Документы проверены, все готово к выходу на сделку. Покупателям предоставляем полное сопровождение, преференции при одобрении ипотеки, проводим онлайн показы, организуем дистанционные и региональные сделки. Предоставляем клиентам сертификаты на товары компании Hoff. Сотрудничаем с агентами, вопросы по телефону, торг на показах.

Для получения более детальной информации и записи на просмотр свяжитесь с нами в любое удобное время!

Остались вопросы?
Наши специалисты ответят на все интересующие вопросы о
Расположение объекта на карте
Двухкомнатная квартира S 86.99 м² на 5 эт., р-он Дагомыс
Получить презентацию
Локация
Расположение
Комплекс расположен в Лазаревском районе г. Сочи в мкр. Дагомыс в непосредственной близости от центра города, всех достопримечательностей и культурно-досуговых заведений.
Центр Сочи
Аэропорт
Красная поляна
Похожие объекты
Остались вопросы?
Наши специалисты ответят на все интересующие вопросы о